
設計理念:“家”不僅僅是居所,它承載的是一生美好的記憶。
設計說明:快節奏的生活,讓人增長的不只是年紀,還有歲月給予的沉穩和從容。本案主人翁是一位50歲左右的成功商人。刪繁就簡,去掉繁復的造型,保留簡潔硬朗的線條。美式風格,低調沉穩。簡單的地面拼花,搭配多層次的天花造型,無論是幾幅抽象的掛畫,還是適當位置的金屬飾物,在無意間都暗含的主人對生活品質的追求。試想,在實木真皮沙發的包裹中,和家人一起欣賞超大屏的歐美大片。原來一生所求如此簡單。暗木色的實木地板,搭配黑檀木的家具,忙碌了一天是時候在檀香中緩緩歲去。

佛山201-300平米復式美式風格裝修效果圖
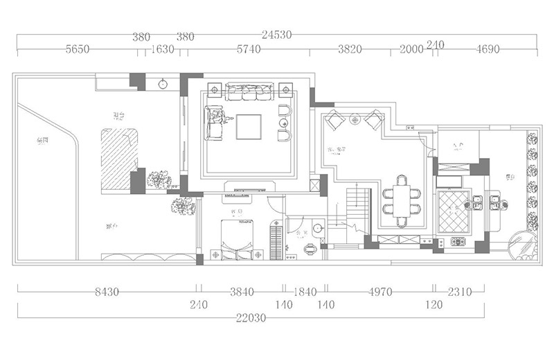
室內裝修效果圖-平面圖

佛山201-300平米復式美式風格裝修效果圖
室內裝修效果圖-客廳

佛山201-300平米復式美式風格裝修效果圖
室內裝修效果圖-餐廳

佛山201-300平米復式美式風格裝修效果圖
室內裝修效果圖-二樓客廳

佛山201-300平米復式美式風格裝修效果圖
室內裝修效果圖-臥室
紅河哈尼族彝族自治州101-200平米美式風格俊峰花園室內裝修設計案例
美式風格101-200平米三居室
臺州101-200平米美式風格美景和府室內裝修設計案例
美式風格101-200平米四居室
文山壯族苗族自治州101-200平米美式風格中天名郡裝修設計案例
美式風格101-200平米三居室
嘉興101-200平米美式風格東林苑家裝設計效果圖
美式風格101-200平米四居室
紅河哈尼族彝族自治州101-200平米美式風格驪都國際家裝設計案例
美式風格101-200平米三居室
廣州101-200平米美式風格家裝設計案例
美式風格101-200平米復式
衢州301平米以上美式風格室內設計效果圖
美式風格301平米以上別墅
廣州101-200平米美式風格家裝設計效果圖
美式風格101-200平米三居室