

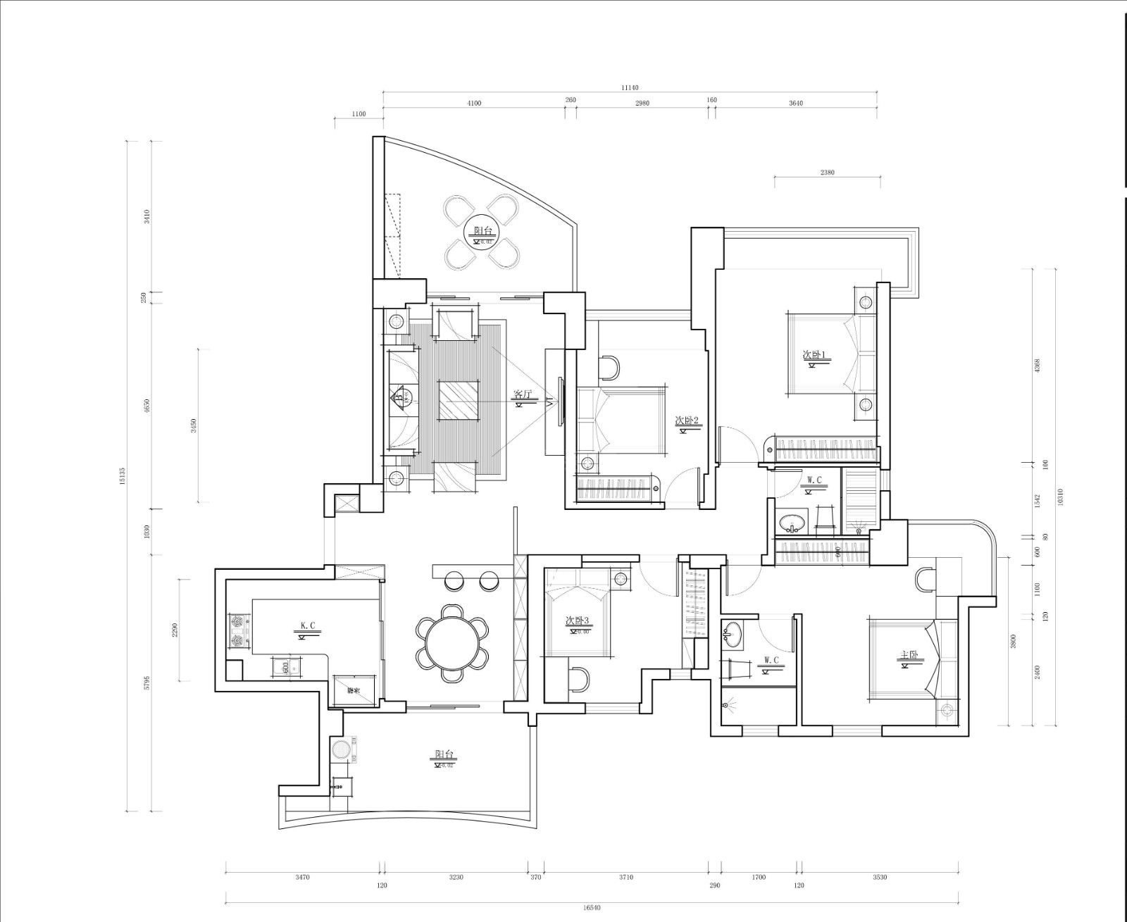
廣州名門十八四居輕奢風格裝修效果圖

廣州名門十八四居輕奢風格裝修效果圖

廣州名門十八四居輕奢風格裝修效果圖

廣州名門十八四居輕奢風格裝修效果圖

廣州名門十八四居輕奢風格裝修效果圖

廣州名門十八四居輕奢風格裝修效果圖

廣州名門十八四居輕奢風格裝修效果圖

廣州名門十八四居輕奢風格裝修效果圖

廣州名門十八四居輕奢風格裝修效果圖

廣州名門十八四居輕奢風格裝修效果圖

廣州名門十八四居輕奢風格裝修效果圖

廣州名門十八四居輕奢風格裝修效果圖
廣州201-300平米輕奢風格荔園悅享星醍裝修設計效果圖
輕奢風格201-300平米別墅
珠海101-200平米輕奢風格雅居樂山海郡裝修設計效果圖
輕奢風格101-200平米三居室
廣州101-200平米輕奢風格保利云禧室內設計效果圖
輕奢風格101-200平米四居室
廣州301平米以上輕奢風格蘇都花園裝修設計效果圖
輕奢風格301平米以上別墅
廣州101-200平米輕奢風格家裝設計效果圖
輕奢風格101-200平米三居室
廣州101-200平米輕奢風格峰景大夏室內設計效果圖
輕奢風格101-200平米三居室
廣州101-200平米輕奢風格金地香山湖室內裝修設計案例
輕奢風格101-200平米三居室
廣州100平米以下輕奢風格室內裝修設計案例
輕奢風格100平米以下三居室